Über die Immobilie
Objektbeschreibung
Objekt-Nummer: G062
Art des Energieausweises: Bedarfsausweis
Endenergiebedarf in kWh/(m² a): 148,8
Wesentlicher Energieträger der Heizung: Erdgas
Energieeffizienzklasse: E
Baujahr lt. Energieausweis: 1961
Dieses gepflegte Reihenendhaus im beliebten Wilhelmshavener Stadtteil Altengroden vereint solide Bauqualität, eine durchdachte Raumaufteilung und ein großzügiges Grundstück (Erbbauzins vierteljährlich 69,78 EUR) zu einem stimmigen Gesamtangebot. Das im Jahr 1962 errichtete Klinkerhaus steht auf einem 569 m² großen Grundstück und bietet rund 100 m² Wohnfläche sowie zusätzliche, gut nutzbare Flächen im Keller- und Dachbereich.
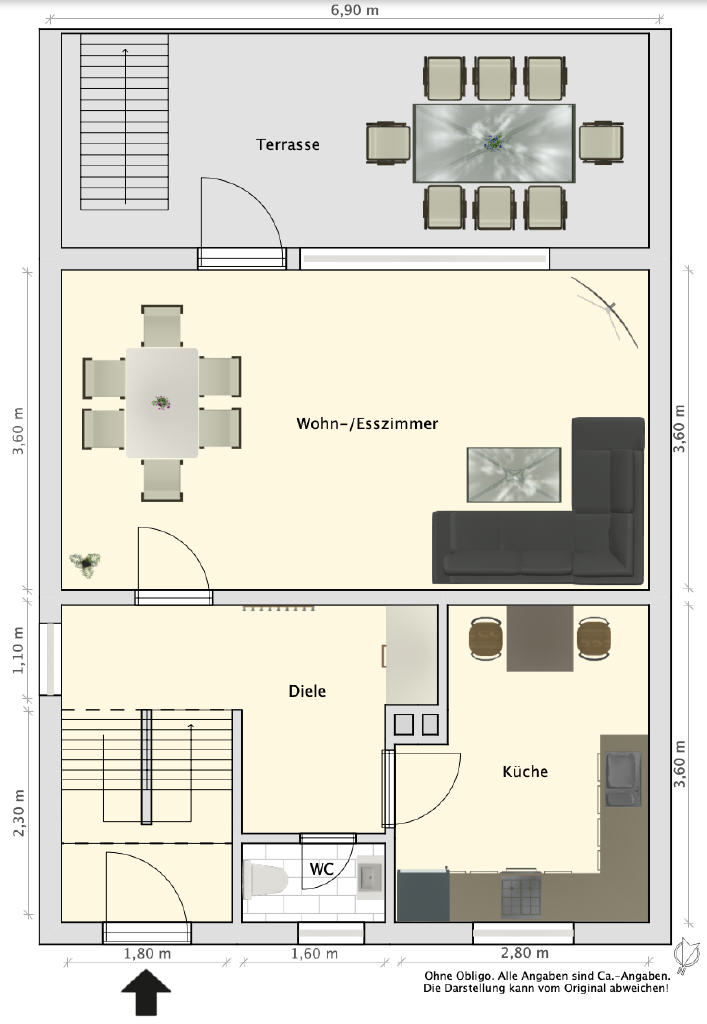
Bereits beim Betreten des Hauses zeigt sich die klassische und funktionale Grundrissgestaltung, wie sie für Häuser dieser Bauart recht typisch ist. Das Wohnzimmer im Erdgeschoss bildet den Mittelpunkt des täglichen Lebens. Eine gemütliche Essecke fügt sich harmonisch ein und der direkte Zugang zur nach Süden ausgerichteten Hochterrasse sorgt für eine angenehme Verbindung zwischen Innen- und Außenbereich. Hier genießen Sie sonnige Stunden in geschützter Atmosphäre; eine Markise spendet bei Bedarf angenehmen Schatten. Die angrenzende Küche ist mit einer Einbauküche ausgestattet und bietet ausreichend Platz. Ergänzt wird das Raumangebot auf dieser Ebene durch ein Gäste-WC.
Von der Diele aus gelangen Sie über wenige Stufen in den Kellerbereich. Vier großzügige Kellerräume, darunter ein Hauswirtschaftsraum, bieten vielseitige Nutzungsmöglichkeiten: sei es als Stauraum, Werkstatt oder Hobbybereich. Die 2017 erneuerte Heizungsanlage ist hier ebenfalls untergebracht. Besonders praktisch: Über den Keller besteht ein direkter Zugang in den Garten.
Im Obergeschoss stehen drei gut geschnittene Zimmer zur Verfügung, die sich flexibel nutzen lassen. Das Tageslichtbad ist mit einer Badewanne und WC ausgestattet. Eine weitere Etage darüber eröffnet sich zusätzlicher Raum in Form eines großzügigen Zimmers sowie eines Abstellraumes.
Die vorhandene Wohn- und Nutzfläche ist effizient genutzt und bietet eine solide Grundlage für individuelle Modernisierungs- und Gestaltungsideen. Außenrollläden an allen Fenstern sorgen für zusätzlichen Komfort und Sicherheit.
Das Grundstück überzeugt mit seiner angenehmen Größe und bietet ausreichend Platz zum Gärtnern, Spielen und Entspannen. Ein Gartenhaus schafft praktischen Stauraum z.B. für Geräte und Gartenmöbel. Besonders komfortabel ist die direkt am Haus gelegene Garage mit Zugang zum Garten.
Das Haus befindet sich in einem guten, gepflegten Zustand und bietet eine solide Basis für Käufer, die ihre eigenen Wohnvorstellungen verwirklichen möchten. Mit etwas Kreativität entsteht hier ein Zuhause mit Charakter in der gewachsenen und gefragten Lage von Altengroden.
Lage & Umgebung
Der Ortsteil Altengroden befindet sich zwischen dem Maadebogen, dem Stadtpark, Rüstersiel und Coldewei. Während Altengroden-Nord eine Mehrfamilienhausbebauung mit großen Grünflächen aufweist, zeichnet sich Altengroden-West durch Einfamilienhausbebauung aus. Altengroden-Süd liegt unmittelbar am weitläufigen Stadtpark. Im gesamten Ortsteil sind Einkaufsmöglichkeiten/ eine Grundschule/ mehrere Kindergärten/ Restaurants/ Arztpraxen und Apotheken gegeben. Eine gute Busanbindung ist vorhanden.
Ein ruhiger Wohnort, der alles bietet, inmitten von Grün- und Waldflächen.
