Über die Immobilie
Objektbeschreibung
Objekt-Nummer: G040
Art des Energieausweises: Verbrauchsausweis
Endenergieverbrauch in kWh/(m² a): 112,1
Wesentlicher Energieträger der Heizung: Erdgas
Energieeffizienzklasse: D
Baujahr lt. Energieausweis: 1998
In einer der gefragtesten Wohnlagen von Wilhelmshaven, dem beliebten Pädagogenviertel, wird dieses gepflegte Reihenmittelhaus aus dem Baujahr 1998 zum Verkauf angeboten. Die Immobilie wird seit ihrer Errichtung durchgehend vom Eigentümer selbst bewohnt und präsentiert sich bereits von außen als ordentlich, ruhig gelegen und wertbeständig.
Der Verkauf richtet sich gezielt an einen Kapitalanleger, der dem derzeitigen Eigentümer die Weiternutzung als Mieter ermöglicht. Diese Konstellation bietet eine attraktive Kombination aus sicherer Vermietung, gewachsener Bindung zur Immobilie und nachhaltigen Werterhalt.
Über eine verkehrsberuhigte Zuwegung erreicht man direkt den zum Haus gehörenden Carport. Ein idyllischer Fußweg führt ebenso direkt zum hübsch überdachten Hauseingang. Die klare Architektur, das gepflegte Klinkerfassadenbild sowie die harmonische Einbindung in die Reihenhausanlage unterstreichen den soliden Gesamteindruck.
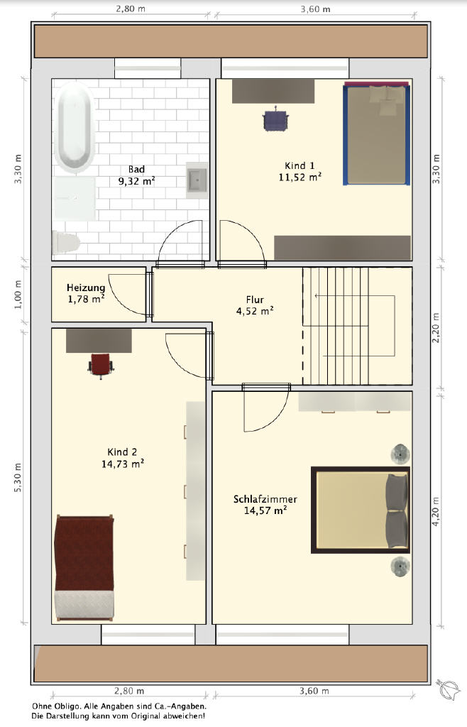
Das Haus verfügt über eine Wohnfläche von ca. 109 m² (sowie eine Ausbau-Reserve im Spitzboden von ca.20 m²) und bietet einen funktional durchdachten Grundriss über Erd- und Obergeschoss. Im Erdgeschoss befindet sich der großzügige Wohn- und Essbereich mit ca. 27 m², der sich zur sonnigen Süd-West-Terrasse und in den überschaubaren, angelegten Gartenbereich öffnet; ein ruhiger Rückzugsort mit hohem Wohnwert. Ergänzt wird diese Ebene durch Küche, Gäste-WC sowie einen Hauswirtschaftsraum.
Im Obergeschoss stehen drei gut geschnittene Zimmer, ein Badezimmer sowie ein separater Heizungsraum zur Verfügung. Der Dachboden bietet zusätzliche Abstellfläche und rundet das Platzangebot sinnvoll ab.
Eine Immobilie für Kapitalanleger, die auf Stabilität, Werthaltigkeit und langfristige Perspektive setzen.
Innenfotos können nicht zur Verfügung gestellt werden.
Für die Vereinbarung eines Besichtigungstermins rufen Sie uns gerne an.
Lage & Umgebung
Das 1958 erbaute Pädagogenviertel liegt im Stadtteil Heppens, dem einwohnerstärksten Stadtteil Wilhelmshavens mit entsprechend guter Infrastruktur. Es handelt sich hier um eines der bevorzugten Wohngebiete der Stadt Wilhelmshaven. Ruhig gelegen, dennoch Zentral.
In unmittelbarer Nähe finden sich zahlreiche, fußläufig bestens erreichbare Einkaufsmöglichkeiten.
Gleiches gilt für Kindergärten, Schulen und auch Sportplätze (Leichtathletik/ Fußball/ Tennis/ Hockey/ Football). Restaurants und Lokale runden das tolle Bild ab.
Ein Wilhelmshavener Ortsteil, in dem es sich zu leben lohnt.
