Über die Immobilie
Objektbeschreibung
Objekt-Nummer: F482
Art des Energieausweises: Verbrauchsausweis
Endenergieverbrauch in kWh/(m² a): 112,7
Wesentlicher Energieträger der Heizung: Erdgas
Energieeffizienzklasse: D
Baujahr lt. Energieausweis: 1974
Diese Gewerbefläche befindet sich in einer der bekanntesten und belebtesten Lagen Wilhelmshavens: direkt am Kurpark im renommierten Atlantic-Haus, unmittelbar an der stark frequentierten Kortekreuzung. Der Standort zeichnet sich durch ein hohes Maß an Sichtbarkeit aus und profitiert sowohl von intensivem Straßenverkehr als auch von kontinuierlichem Fußgängeraufkommen. Eine Lage, die seit Jahrzehnten fest im Stadtbild verankert ist und entsprechend wahrgenommen wird.
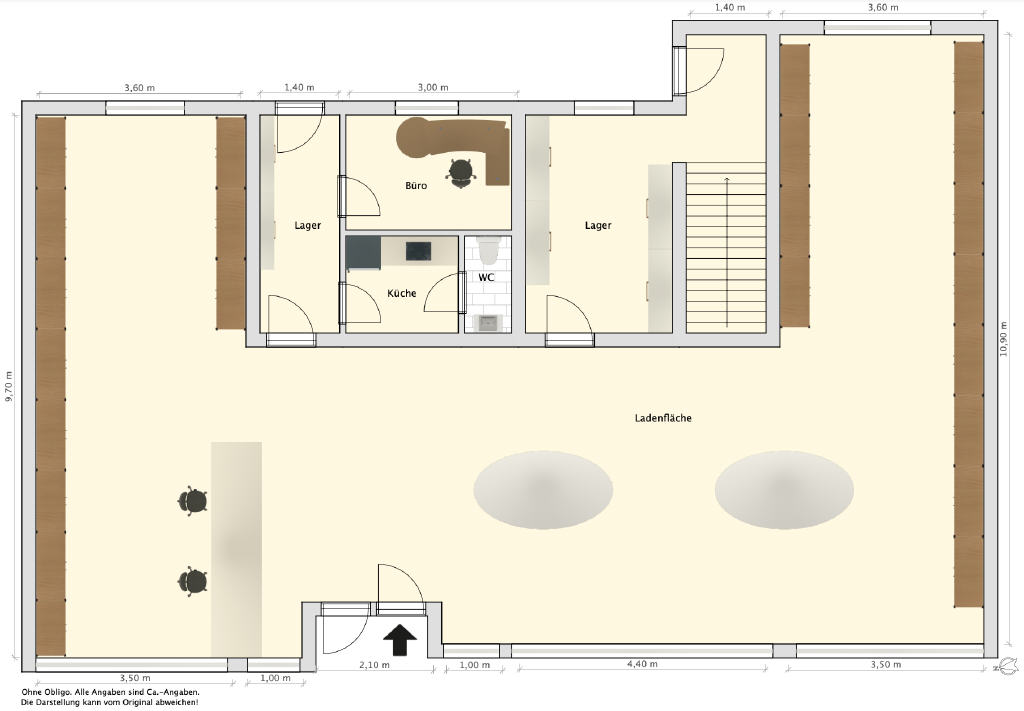
Die rund 158 m² große Ladenfläche liegt ebenerdig und bietet großzügige, gut proportionierte Räumlichkeiten mit einer durchgehenden und großen Fensterfront. Durch die überwiegende Möglichkeit der Gestaltung mit Leichtbauwänden lässt sich das Raumkonzept flexibel an unterschiedliche Nutzungsanforderungen anpassen ob klassischer Einzelhandel, Dienstleistungen, Büro oder eine Kombination daraus. Ergänzt wird die Fläche durch eine praktische Küchennische, ein WC sowie ein separates kleines Büro, das sich ideal für Verwaltung oder Rückzug eignet.
Ein besonderes Highlight stellt der ca. 81 m² große Kellerbereich dar, der sich direkt unter der Ladenfläche befindet und bequem von dort aus erreichbar ist. Die vier vorhandenen Kellerräume bieten außergewöhnlich viel Platz und eröffnen vielseitige Nutzungsmöglichkeiten, insbesondere als Lagerfläche, Archiv oder zur funktionalen Ergänzung des Geschäftsbetriebs. In dieser Größenordnung ist ein solches zusätzliches Raumangebot in vergleichbaren Innenstadtlagen selten und stellt einen klaren Mehrwert dar.
Das Gebäude wurde im Jahr 1974 errichtet und beherbergt in den oberen Etagen überwiegend Wohnungen. Die Gewerbeeinheit selbst war über viele Jahre vermietet und steht ab dem 01. Januar 2026 zum Verkauf zur Verfügung. Das derzeitige monatliche Hausgeld inklusive Heizkosten und Rücklagen beläuft sich auf 470,00 Euro.
Ein weiterer Vorteil sind die zwei der Gewerbeeinheit zugeordneten Stellplätze im Innenhof des Gebäudes. Darüber hinaus stehen im direkten Umfeld zahlreiche öffentliche Parkmöglichkeiten zur Verfügung, was sowohl für Kunden als auch für Mitarbeiter von Bedeutung ist.
Insgesamt handelt es sich um eine Gewerbeimmobilie mit Substanz, Bekanntheitsgrad und hervorragender Lage, die sowohl für Eigennutzer als auch für Kapitalanleger eine interessante Perspektive bietet. Die Kombination aus stark frequentiertem Standort, flexibler Fläche und großzügigem Keller macht dieses Angebot zu einer seltenen Gelegenheit im Herzen Wilhelmshavens.
Lage & Umgebung
Heppens ist der einwohnerstärkste Stadtteil Wilhelmshavens mit entsprechend guter Infrastruktur und gutem Wohnumfeld. Hier finden Sie Einkaufsmöglichkeiten, ärztliche Versorgungen sowie soziale Einrichtungen. Der Bismarckplatz, ist ein wichtiger Knotenpunkt der städtischen Buslinien.
Heppens verfügt über ein großzügiges Angebot an allgemeinbildenden Schulen, unter anderem das Neue Gymnasium Wilhelmshaven, die Grundschule Mühlenweg und die Musikschule. Im östlichen Teil von Heppens finden Sie Reit- und Fahrvereine sowie ein Kleingartengelände.
Der westliche Teil von Heppens ist seit 2019 als Sanierungsgebiet Tonndeich ausgewiesen und wird durch städtebauliche Maßnahmen hinsichtlich des Wohnwertes als auch des gesunden Arbeitens bis voraussichtlich 2034 noch weiter aufgewertet.
