Über die Immobilie
Objektbeschreibung
Objekt-Nummer: F353
Art des Energieausweises: Bedarfsausweis
Endenergiebedarf in kWh/(m² a): 177,5
Wesentlicher Energieträger der Heizung: Erdgas
Energieeffizienzklasse: F
Baujahr lt. Energieausweis: 1905
Dieses außergewöhnliche Anwesen im Stadtteil Neuengroden in Wilhelmshaven vereint historischen Villencharakter mit modernem Wohnkomfort. 1905 errichtet, über die Jahrzehnte erweitert, modernisiert und schließlich in den Jahren 2002 2003 aufwendig saniert, präsentiert sich das Haus heute als echtes Traumdomizil. Mit viel Liebe zum Detail wurde es im Laufe der Zeit kontinuierlich instandgehalten und an moderne Ansprüche angepasst zuletzt 2024 mit einem hochwertigen Carport mit Glasdach.
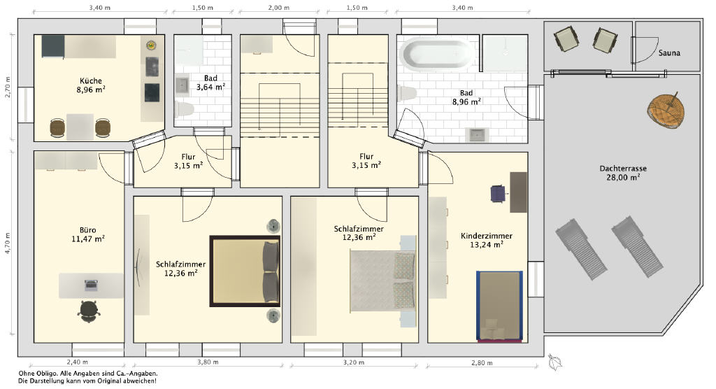
Bereits beim Betreten spürt man die Großzügigkeit und den besonderen Charme dieses Hauses. Das Erdgeschoss bietet mit 5 hellen Zimmern, einer erst zwei Jahre alten, hochmodernen Küche sowie einem stilvollen Bad mit ebenerdiger Dusche und WC ein Raumangebot, das kaum Wünsche offenlässt. Der HWR führt direkt hinaus auf die nicht einsehbare Terrasse ein Ort für entspannte Stunden im Freien. Auch das Wohnzimmer überzeugt mit seinem behaglichen Kaminofen und einem direkten Zugang in den grünen Außenbereich. Die elegante Treppe mit ihrem edlen Geländer aus Aluminium führt ins OG, wo ein offener Flurbereich, zwei weitere Zimmer und ein lichtdurchflutetes Bad mit Badewanne, Dusche und WC die neuen Bewohner erwartet. Ein absolutes Highlight ist der Zugang über das Badezimmer zur großzügigen Dachterrasse eine wahre Wohlfühloase mit Sauna und herrlichem Weitblick.
Über eine separate Außentreppe ist die zweigeschossige Einliegerwohnung erreichbar. Sie bietet im 1. OG zwei Zimmer, eine Küche sowie ein Bad mit Dusche und WC. Über die gut erhaltene historische Holztreppe gelangt man in das Dachgeschoss mit drei weiteren Räumen.
Auch die Ausstattung zeigt, dass dieses Haus mit Blick auf Qualität und Zukunftsfähigkeit gepflegt wurde. Moderne Fenster, geschmackvolle Bäder, eine Photovoltaikanlage und ein Carport sorgen dafür, dass die historischen Vorzüge des Hauses mit Technik von heute harmonisch verbunden sind.
Dieses Haus ist mehr als nur ein Ort zum Wohnen es ist ein Raum für Leben, Arbeiten und Erholung. Ein Gebäude mit Geschichte, das durch seine Modernität auch in die Zukunft hinein Bestand haben wird.
Lage & Umgebung
Wilhelmshavens schöner Stadtteil Neuengroden liegt nordöstlich vom Rüstringer Stadtpark. Im Laufe der letzten Jahre entstanden hier überwiegend Reihen- und Einfamilienhäuser. Kleingartenvereine tragen hier zum grünen Bild Neuengrodens bei. Am Rande des Stadtteils verläuft mit dem Lönsweg ein idyllisch gelegener Fahrradweg, der den Stadtnorden mit dem Zentrum verbindet.
Die Freiligrathstraße zieht sich durch ganz Neuengroden. Sie verläuft in etwa in Richtung des ehemaligen Deiches. Ob Supermarkt, Ärzte, Apotheke, Tankstelle, Gärtnerei, Restaurants oder Blumenläden hier finden Sie alles für den täglichen Bedarf ganz in Ihrere Nähe.
Im Westen Neuengrodens liegt der Rüstringer Stadtpark des bekannten Städteplaners Leberecht Migge, mit einem idyllischen Teich mit großer Wasserfontaine, auf dem im Sommer Tretboot gefahren werden, kann sowie die Ausflugsgastronomie "Bootshaus". Östlich von Neuengroden befindet sich der Deich entlang des Jadefahrwassers. Hier wird auf Spaziergängen oder während einer Fahrradtour Schiffe geguckt und die Seeluft geschnuppert.
