Über die Immobilie
Objektbeschreibung
Objekt-Nummer: F351
Art des Energieausweises: Bedarfsausweis
Endenergiebedarf in kWh/(m² a): 157,2
Wesentlicher Energieträger der Heizung: Erdgas
Energieeffizienzklasse: E
Baujahr lt. Energieausweis: 1977
Im Herzen des Stadtteils Fedderwardergroden präsentiert sich diese ca. 162 m² große Gewerbefläche im Erdgeschoss eines sehr gepflegten, 1977 erbauten Mehrfamilienhauses mit insgesamt drei Etagen. Das Gebäude steht auf einem 1.643 m² großen Grundstück und umfasst neben der angebotenen Einheit drei weitere Wohneinheiten, die als Eigentumswohnungen genutzt werden.
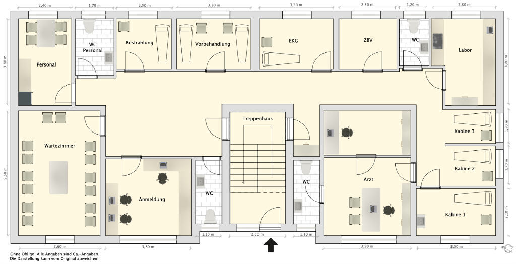
Die hier angebotene Fläche entstand aus der Zusammenlegung von zwei Wohneinheiten und wurde zu einer modernen und großzügigen Arztpraxis umgestaltet. Sie ist aktuell gut und zuverlässig vermietet und befindet sich in einem sehr gepflegten Zustand. Die Praxis bietet insgesamt 10 teils großzügige Räume, die flexibel nutzbar sind. Im Eingangsbereich empfängt eine helle Diele mit Anmeldung und Wartezimmer die Patienten. Weiter steht ein Aufenthaltsraum für die Mitarbeiter zur Verfügung. Hinzu kommen drei WC-Anlagen sowie Sprechzimmer, Labor und Behandlungsräume. Für ausreichend Lager- und Archivfläche sorgen zwei große Kellerräume, die direkt zur Gewerbefläche gehören. Zusätzlich steht den Bewohnern des Hauses ein gemeinschaftlicher Trockenraum zur Verfügung.
Über den Keller gelangt man in den hinteren Außenbereich, wo eine große Rasenfläche zum Grundstück gehört. Zahlreiche Parkmöglichkeiten im hinteren Bereich des Hauses runden das Angebot ab und sorgen für eine bequeme Erreichbarkeit.
Die Praxis ist seit vielen Jahren sehr gut eingeführt und läuft erfolgreich. Der aktuelle Mietvertrag ist bis zum 30.11.2026 fest vereinbart und verlängert sich jeweils um ein Jahr. Damit bietet die Immobilie eine sichere Kapitalanlage mit stabilen Mieteinnahmen. Das monatliche Hausgeld beträgt derzeit 573 Euro inkl. der Heizkosten.
Für die Vereinbarung eines Besichtigungstermins rufen Sie uns gerne an.
Lage & Umgebung
Fedderwardergroden, von Einheimischen "F'Groden" genannt, ist ein Stadtteil von Wilhelmshaven. Der Stadtteil liegt im nordwestlichen Teil der Stadt und ist bekannt für seine ruhigen Wohngebiete, Grünflächen und seine Nähe zur Natur.
Es bietet seinen Bewohnern eine entspannte und naturnahe Umgebung, während es gleichzeitig eine gute Anbindung an die Innenstadt von Wilhelmshaven bietet. In Fedderwardergroden gibt es mehrere Grünflächen und Parks, die zum Spazierengehen, Radfahren und Erholen einladen.
Der Stadtteil hat auch eine gute Infrastruktur, mit Einkaufsmöglichkeiten, Schulen und öffentlichen Verkehrsmitteln in der Nähe. Das Stadtzentrum von Wilhelmshaven ist nur eine kurze Autofahrt oder Busfahrt entfernt. Die Autobahn A29 ist direkt über eine Auffahrt in F'Groden zu erreichen.
Insgesamt ist Fedderwardergroden ein attraktiver Stadtteil für diejenigen, die ein ruhiges Leben in der Nähe der Natur suchen, ohne auf die Annehmlichkeiten einer Stadt verzichten zu müssen.
